+39 02 96779504
+39 335 5215275
Italiano

3 locali In Vendita a Lomazzo


130.000 €
80 m2
2 Camere
1 Bagni
1 Box
Appartamento di tre locali con servizi oltre a box.
Posizione centralissima, comoda con tutti i servizi.
Ideale per chi cerca la comodita' della vicinanza alle Ferrovie Nord.
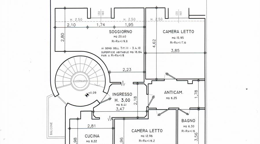
Appartamento posto al terzo piano con ingresso, cucina abitabile, piccolo soggiorno, disimpegno con cabina armadio, due camere da letto e bagno con doccia e finestra. Balcone.
Tetto e facciata rifatti 10 anni fa, serramenti ottimi, legno interno e alluminio esterno.
Palazzina di solo 3 appartamenti caldaia centralizzata e acqua condominiale divisa per 3. La casa viene venduta arredata.
Possibilita' di acquistare un secondo box a € 15.000
Libera subito.
PREZZO NON TRATTABILE
Caratteristiche principali
Codice
V000932
Città
Lomazzo
Categoria
3 locali
Locali
3
Camere
2
Bagni
1
Mq
80
Box
1
Mq Box
18
Balconi
1
Piano
3
Classe energetica
In fase di valutazione
Stato Immobile
Ottimo
Grado
Signorile
Posizione
Centro
Arredi
Arredato
Tipo Soggiorno
Soggiorno
Tipo Cucina
Abitabile
Riscaldamento
Centralizzato
Tipo Riscaldam.
Caldaia
Tipo Impianto
Radiatori
Fonte Energetica
Metano
Acqua Calda
Centralizzata
Infissi
Legno Doppio Vetro
Serramenti
Buono
Accessori
Cancello Elettrico, Passaggio Automobilistico, Passaggio Pedonale
Mappa
via Pace , Lomazzo (CO)
Contattaci
+39 02 96779504
+39 335 5215275
lomazzo@gfcase.it
Cookie preference