+39 02 96779504
+39 335 5215275
Italiano

Porzione di Casa In Vendita a Lomazzo


198.000 €
158 m2
4 Camere
4 Bagni
1 Box / 2 Posti auto
Interessante porzione di casa in centro storico a poche centinaia di metri dalla ferrovia e dal centro paese, libera su due lati con giardino di proprieta'.
Soluzione ristrutturata del 2005, pannelli fotovoltaici, impianto geotermico, riscaldamento con pompa di calore.
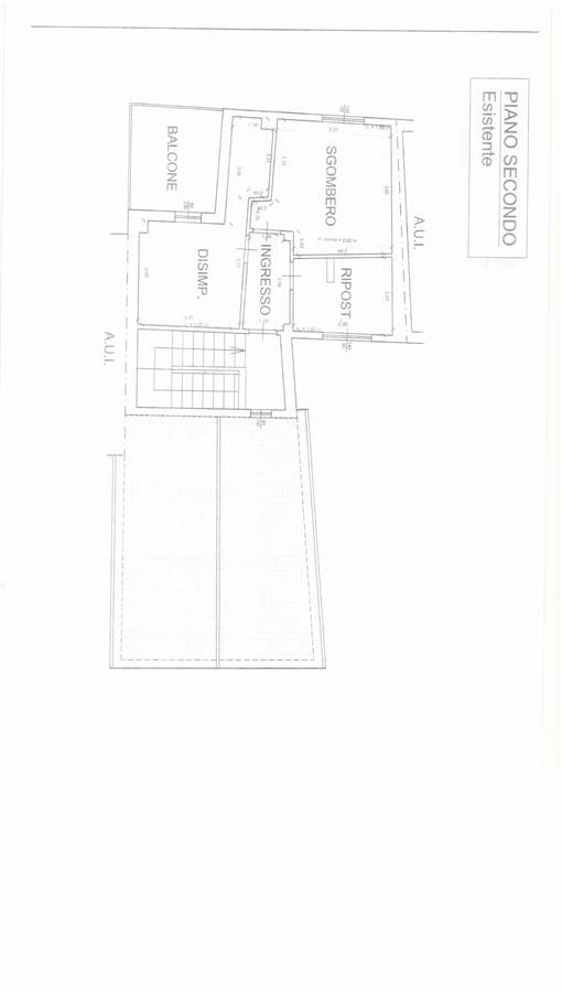
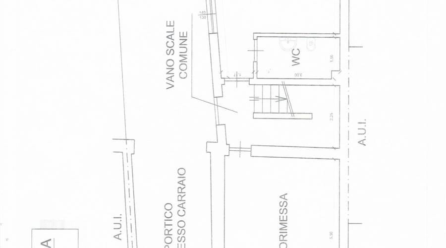
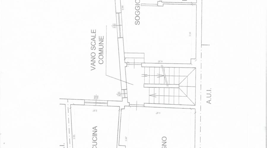
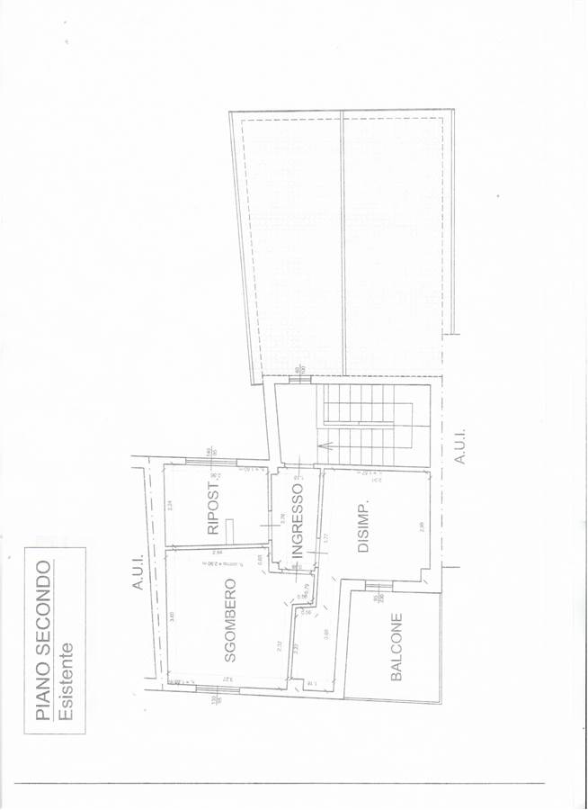
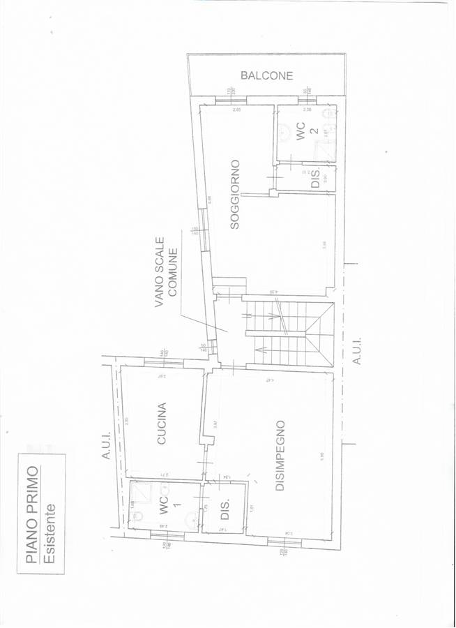
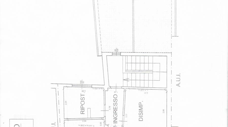
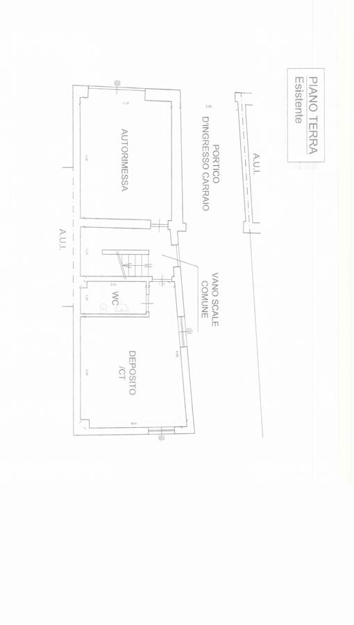
Piano terra con ampio box e locale studio/locale termico, giardino lato sud, bagno cieco, portico dove poter parcheggiare comodamente due autovetture. piano primo appartamento di tre locali con due servizi e balcone, piano secondo agibile non abitabile con due stanze a uso hobby con bagno/ripostiglio , e terrazzo. Soluzione libera entro 3 mesi dal compromesso.
Massimo indipendenza.
Vengono richiesti € 30.000 tra caparra e compromesso.
CUCINA ARREDATA CON TAVOLO E SEDIE, ARMADIO CAMERA MATRIMONIALE SU MISURA E ARREDO CABINA ARMADIO DELLA CAMERETTA COMPRESO NEL PREZZO.
PREZZO NON TRATTABILE.
VENDUTO
Caratteristiche principali
Codice
V000926
Città
Lomazzo
Categoria
Porzione di Casa
Locali
4
Camere
4
Bagni
4
Mq
158
Box
1
Posti auto
2
Terrazzi
1
Classe energetica
D
174,47
Stato Immobile
Ristrutturato
Posizione
Centro Storico
Lati Liberi
2
Giardino
Privato
Tipo Soggiorno
Salone
Riscaldamento
Autonomo
Tipo Riscaldam.
Pompa di Calore
Fonte Energetica
Fotovoltaico
Acqua Calda
Autonoma
Infissi
Legno Doppio Vetro
Accessori
Doppi Vetri, Impianto Fotovoltaico, Pannelli Solari, Passaggio Automobilistico, Passaggio Pedonale
Mappa
via degli Arconati , Lomazzo (CO)
Contattaci
+39 02 96779504
+39 335 5215275
lomazzo@gfcase.it
Cookie preference