+39 02 96779504
+39 335 5215275
Italiano

3 locali In Vendita a Cadorago


230.000 €
115 m2
2 Camere
1 Bagni
2 Box
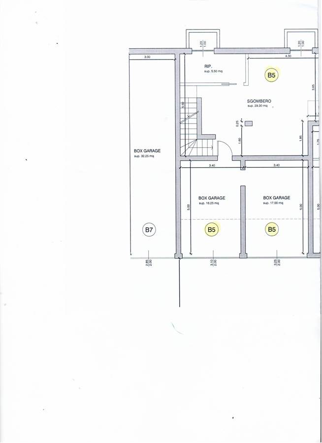
Interessante appartamenti di tre locali posto in zona residenziale: ingresso da giardino, soggiorno, cucina abitabile a vista con accesso da porta finestra alla parte retrostante di giardino, due camere da letto e bagno con doccia; scala interna che porta alla zona interrata dove troviamo una confortevole taverna con camino funzionante, lavanderia e porta di accesso ai due box comunicanti con basculante elettrica. La casa si presenta in ottimo stato di manutenzione, caldaia a condensazione recente marca Bosch.
Camino riscalda tutta la casa grazie alle bocchette, riscaldamento controllato tramite domotica, addolcitore per togliere il calcare.
Mobili della cucina e arredo bagno compreso nel prezzo.
Consegna 6 mesi dal compromesso.
Se cerci un appartamento con giardino , in zona residenziale a pochi passi dai principali servizi, con una taverna che puo' diventare zona relax/studio, questa e' la casa che fa per te.
Merita una visione.
L'indirizzo pubblicato e' puramente indicativo per rispettare la privacy del venditore.
Caratteristiche principali
Codice
V000925
Città
Cadorago
Categoria
3 locali
Spese condominiali
1.000 € / anno
Locali
3
Camere
2
Bagni
1
Mq
115
Box
2
Mq Box
45
Mq Giardino
150
Classe energetica
D
106,06
Stato Immobile
Ottimo
Grado
Signorile
Panorama
Vista Giardino
Lati Liberi
2
Giardino
Privato
Arredi
Possibilità
Tipo Soggiorno
Soggiorno
Tipo Cucina
Abitabile
Riscaldamento
Autonomo
Tipo Riscaldam.
Caldaia a Condensazione
Tipo Impianto
Radiatori
Fonte Energetica
Metano
Acqua Calda
Autonoma
Raffrescamento
Split
Infissi
Legno Doppio Vetro
Serramenti
Ottimo
Accessori
Armadio a Muro, Camino, Cancello Elettrico, Doppi Vetri, Passaggio Automobilistico, Passaggio Pedonale, Porta Blindata
Mappa
via Pascoli 12, Cadorago (CO)
Contattaci
+39 02 96779504
+39 335 5215275
lomazzo@gfcase.it
Planimetrie
Photo 19
Photo 19
Cookie preference